Steinweg 2040


Aufgabe

Voraus geht eine Analyse, die über das Lesen von räumlichen, funktionalen und atmosphärischen Qualitäten und Fehlstellen Potenziale für das Neudenken dieses Stadtraumes hinein in ein fiktives Jahr 2040 erschließt. Dieses Neudenken soll bei der Parzelle beginnen. Es ist eine Typologie im Spannungsfeld von innerstädtischem Wohnen und min. einer weiteren, öffentlichen Funktion zu entwickeln, die Gebäude und Stadt, innen und außen in einen Dialog treten lässt und für den Nutzer wie für den Passanten gleichsam identitätsstiftend sein kann. Eine besondere Rolle wird dabei das Erdgeschoss spielen, das Niveau, auf dem die Bewegung in der Stadt geschieht und der öffentliche Raum sich in den Block erweitert.

Umsetzung

Das Konzept ist ein Gebäude, das mit der Zeit geht, indem die Architektur sich zurückhält und die Bewohner stattdessen mit der Gestaltung ihrer Balkonwände, die Gestalt des Gebäudes verändern. Ich lasse die Bestandsrohbaustruktur bestehen und schneide à la Matta-Clark Balkone aus. Dieses Vorgehen ermöglicht auf mehr Freiraum an der sonst viel belaufenen Tram Haltestelle, die Sich direkt an dem Grundstück befindet. Bei der Gestaltung der Baukörper liegt die Inspiration bei den vor dem Krieg bestehenden Heimatstil Bauten. Ziel war es, mehrere Häuser darzustellen, die jedoch eine gwisse Einigkeit besitzen. Jeder Bewohner kann bei der Gestaltung seines Balkones auf eine bestimmte Farbpalette zurückgreifen, sodass der Charakter von einem grünen, einem roten, ... Haus bestehen bleibt.

Ort
  • Image
  • Image



Steckbrief



  • Image
  • Image
  • Image
  • Image



Entwurf



  • Image
  • Image
  • Image
  • Image
  • Image
  • Image
  • Image
  • Image



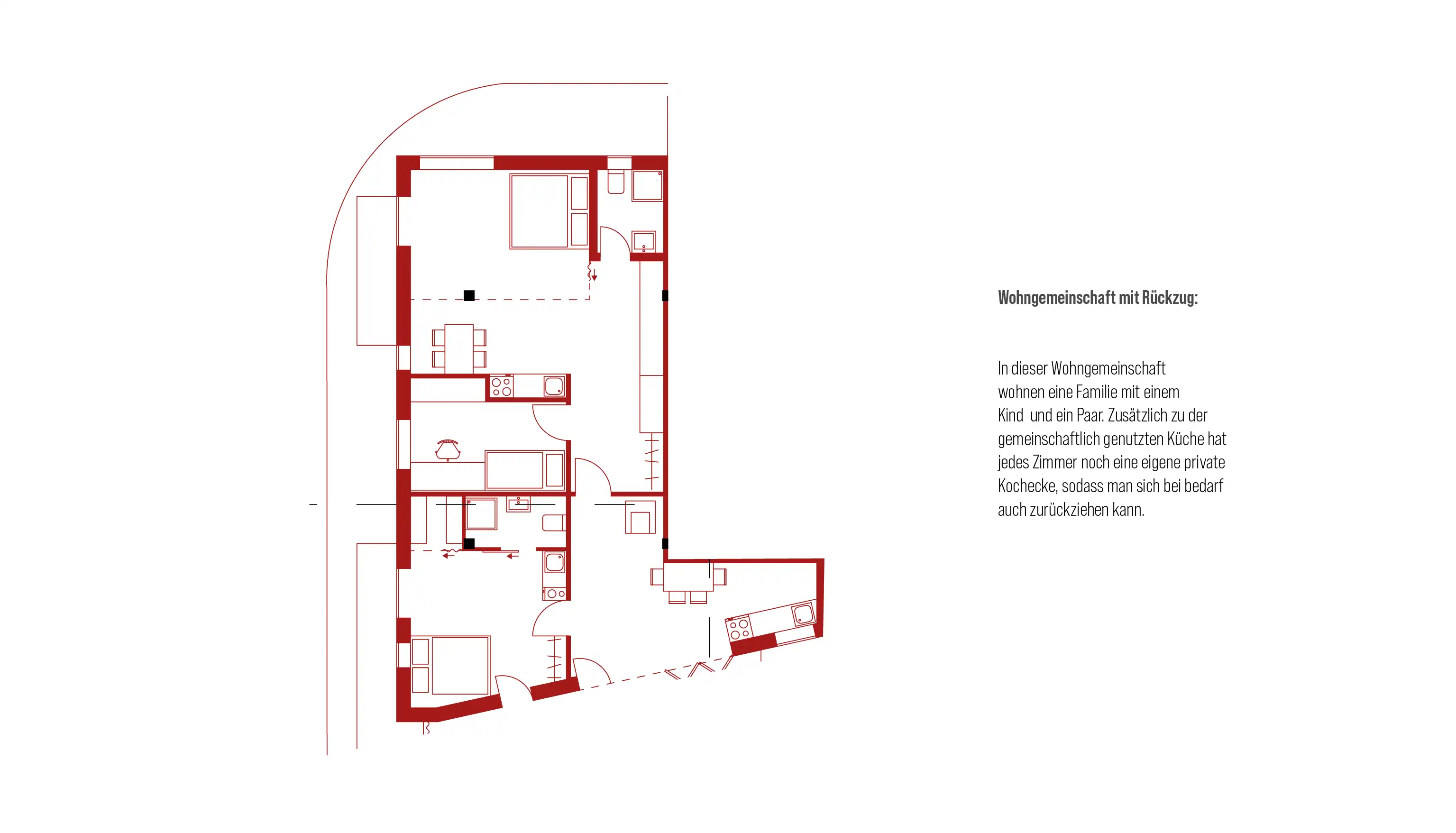
Wohnungstypologien



  • Image
  • Image
  • Image
  • Image



Modellfotos



  • Image
  • Image
  • Image
  • Image